T212 Residenziale Vendita | Roma
€ 195.000


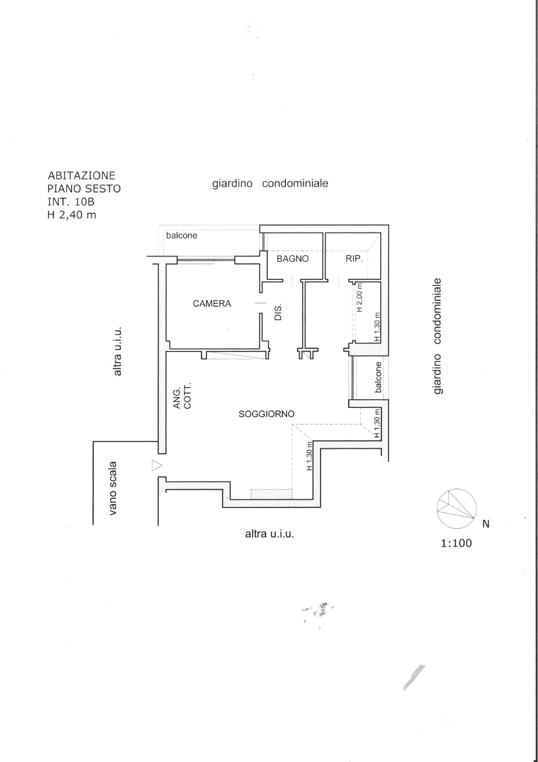
Alessandrino, Via Luca Ghini, 107, in condominio residenziale con ampio e curato giardino condominiale, palazzina in cortina con ascensore, mansarda posta al piano 6° ultimo, composta da grande salone di 40 mq con camino e balcone, disimpegno zona notte , camera da letto con balcone, bagno , ampio ripostiglio , anglo cottura da realizzare nel salone come da planimetria . L'appartamento è un ampio bilocale con doppia esposizione e gode di affacci panoramici. Il condominio è di tipo residenziale. Per informazioni ed appuntamenti , contattare il consulente sig. Marco Barletta tel. 392.24.14.792 e-mail: marco.barletta69@gmail.com Red srl - affiliato FRIMM - sede in Roma , Largo Brindisi, 2a

Tel. 06.62 28 66 64

MAGGIORI INFORMAZIONI

 *Nominativo:
 *E-mail:
 Commenti:
 Telefono:
Digita i caratteri visualizzati nell'immagine:
* I dati contrassegnati con l'asterisco sono obbligatori.

< Indietro